Дождь, снег, солнце, капли с крыши – все то, что не очень хочется прочувствовать на себе, стоя на крыльце дома. Именно для этого монтируются специальные козырьки и навесы. А заодно они дополняют фасад и делают экстерьер здания еще более целостным, гармоничным и завершенным. В этой статье мы расскажем, какой материал выбрать и как сделать козырек самостоятельно!
Формы навесов
Форма и размер козырька играют решающую роль при его выборе. Он обязательно должен быть немного шире входа, чтобы спасать от осадков. Глубину рассчитывай по своим пожеланиям, архитектуре дома и размерам крыльца: в среднем, от 0,5 до 2 м.
В зависимости от типа кровли и наличия скатов, козырьки бывают прямыми, наклонными или рельефными. Наклонные – это одно- и двускатные, а к рельефным относятся пирамидальные, арочные, дугообразные и другие необычные модели. Независимо от конфигурации, нужно предусмотреть систему стока, чтобы осадки не скапливались в одном месте.
Материалы для козырька
Качественный козырек над крыльцом – прочный и выдерживает любые неблагоприятные погодные условия. Используется все что угодно: дерево, стекло, металл, поликарбонат, разные виды кровельных покрытий. Если выбираешь тяжелые материалы, обязательно учитывай нагрузку на каркас: например, под керамочерепицу нужны усиленные брусья увеличенного сечения.
Козырьки из поликарбоната
Поликарбонат – прочный и нетребовательный материал с прозрачностью до 86%. Он выносливый, не боится температурных перепадов, коррозии, грибка и гниения. На него не влияет влажность и ультрафиолет, а поцарапать или повредить его почти невозможно.
Поликарбонат бывает сотовым и монолитным – в зависимости от того, какой формы и размеров козырек ты хочешь. Он гибкий и ему можно придавать разные формы для фигурных и рельефных навесов. При этом он не требует усиленного каркаса и не создает дополнительную нагрузку на фасад или фундамент.
Козырек из поликарбоната можно купить готовым или сделать самостоятельно. Основной недостаток материала – его характерный внешний вид. Он может быть не совсем уместен на классических бревенчатых домах, в стилистике кантри, прованса или северных шале.
Козырек из дерева
Дерево – самый экологичный и разнообразный материал, идеально дополняющий такие же деревянные дома. На волне эко-трендов оно используется для изготовления всего: навесов, беседок, веранд. С ним легко работать и обрабатывать, красить, лакировать, украшать резьбой и декорировать.
Разные сорта древесины отличаются прочностью и влагостойкостью, но все они все равно достаточно чувствительны ко внешним воздействиям. За таким козырьком придется регулярно ухаживать, а в холодных и влажных регионах они могут быть нецелесообразны изначально. При правильной подготовке и пропитке древесины козырек проживет 7-10 лет.
Козырьки из стекла
Использование стекла для козырьков – неоднозначное решение, вокруг которого ходит много мифов. Считается, что это слишком хрупкий и не самый практичный материал. Но уже давно производители создают ударопрочное закаленное стекло, которое почти невозможно повредить. А если даже оно и разбивается – оно рассыпается на мелкие безопасные фрагменты.
Главное преимущество стекла – его эстетичный внешний вид, который идеально дополняет современную архитектуру. Можно экспериментировать с тонировкой и декорированием, не бояться ржавчины и гниения. Единственный минус – стекло требует ухода, чтобы на нем не оставались подтеки и разводы после дождя.
Козырьки из металлочерепицы
Металлочерепица – высокопрочный кровельный материал с отличными техническими характеристиками. Он долговечный и неприхотливый, его почти невозможно повредить. У металлочерепицы лучшие антивандальные свойства из популярных кровельных покрытий.
Срок службы такого козырька легко дойдет до 50 лет без специального ухода. И за все это время он не блекнет, не ржавеет и не теряет привлекательный внешний вид. Металлочерепица сочетается с любыми другими строительными материалами, но требует специальной подготовки основания при монтаже.
Козырьки из профнастила
Профнастил или металлопрофиль – это стальные листы холодного проката, покрытые защитным полимерным слоем. Их главные преимущества – низкая цена в сочетании с повышенной механической прочностью и долговечностью. В ассортименте производителей можно отыскать расцветку из широкой и разноплановой палитры.
С профнастилом легко работать, он не требует сложной подготовки и не утяжеляет основание, не нуждается в специальной обработке и уходе. Только учитывай, что лучше всего козырек из профнастила сочетается с идентичной крышей. И во время сильных дождей, града или порывистого ветра стальные листы будут более шумными, чем дерево или поликарбонат.
Кованые козырьки
Кованые металлические козырьки – это декоративный аксессуар, а не настоящая функциональная защита. Они дополняют классические дома и деревенский стиль. Это традиционное сочетание с деревянными конструкциями, которое никогда не выйдет из моды.
Современные технологии ковки позволяют создавать самые интересные и причудливые узоры. Теперь это гораздо доступнее, ведь раньше такую роскошь могли позволить себе только богачи и аристократы. А свой привлекательный внешний вид кованые элементы сохраняют десятилетиями, независимо от морозов, снега, жары или дождя.
Способы крепления козырька к стене
Козырьки крепятся по-разному, в зависимости от веса и конфигурации. Опорные требуют специальных поддерживающих опор – это вариант для больших навесов и тяжелых кровельных материалов, а подвесные крепятся непосредственно на стену. Функциональные навесы защищают от непогоды, а декоративные – завершают художественные композиции при оформлении экстерьера и ландшафта.
Делаем козырек своими руками!
Козырек можно установить даже самостоятельно – тебе не понадобятся сложные профессиональные навыки. Но не забывай о безопасности: важно, чтобы конструкция была максимально крепкой и прочной. Козырек должен легко выдерживать нагрузки от ветра, дождя и снега.
Деревянный козырек над крыльцом своими руками
Для самого простого односкатного козырька тебе понадобится влагостойкая фанера подходящего размера, доска или вагонка и лист оцинкованного железа. Элементарная конструкция – это три поперечных балки на вертикальных стойках, которые можно сделать декоративными.
Сначала нарисуй схему и трафарет угловых фрагментов, после чего перенеси узор на фанеру. Лучше всего повторять детали прямым копированием, чтобы избежать минимальных неточностей в размерах. Вырежи детали и тщательно отшлифуй всю поверхность и края листом наждачки.
Вырежи переднюю планку и для красоты оставь и на ней резные элементы с повторяющимися мотивами. Для жестокости конструкции проложи перпендикулярно отрезки фанеры и установи центральный ригель. Если у тебя очень широкий карниз, можешь сделать больше опорных элементов, но заранее продумай, как установить их над входом.
Обработай дерево защитными составами и водостойким лаком, покрась при желании. Стальной лист станет защитным кровельным покрытием, но можешь заменить его на профнастил. Не забудь отогнуть заднюю часть для защиты примыкания и небольшие желоба на 1-2 см для сбора осадков и талой воды.
Двухскатный козырек своими руками
Двухскатный козырек изготавливается из деревянного бруса и обшивается вагонкой. Тебе понадобятся угловые опорные стойки, на которых и держится конструкция козырька, основание или рама для стропил, каркас и кровельное покрытие. Для него используй металлочерепицу, битумную черепицу или другой материал на твой вкус.
Закрепи на стене над крыльцом вертикальные отрезки бруса – это будет основа для Г-образных стоек. Затем установи горизонтальные балки и прикрепи саморезами подкосы. Постоянно отслеживай уровень, вертикали и горизонтали, чтобы конструкция была ровной.
Для широкого козырька достаточно трех пар стропил для каркаса, но если ты используешь тяжелое покрытие – сделай больше. Под каждый угол вырежи треугольный брусок для устойчивости, чтобы не оставлять зазоров. Ее можно приклеить обычным клеем и уже потом закрепить саморезом все вместе.
Обшей готовые скаты вагонкой или шпунтованной доской – но обязательно легкими. Простели гидроизоляционный слой или проложи плиту ОСБ, а затем переходи к укладке основного кровельного покрытия.
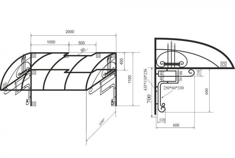
Козырек из поликарбоната своими руками
Выбери поликарбонат: монолитный прочнее, но тяжелее, а сотовый легче, но не такой стойкий. Для навесов, козырьков и подобных конструкций достаточно сотового листа толщиной 8-10 мм. Учти, что расположить лист нужно будет так, чтобы внутренний конденсат мог спокойно стекать вдоль внутренних ребер наружу.
Поликарбонат укладывается вверх защитной пленкой, которая повышает его устойчивость к ультрафиолету. Отверстия под крепежи должны быть чуть больше их диаметра – это тепловые зазоры. Используй под саморезами резиновые шайбы и прокладки, чтобы в соединения не попадала грязь.
При стыковке листов воспользуйся соединительными планками, которые скрывают деформационный шов. Торцы закрой накладками для отвода конденсата или проклей клеевой лентой. Если тебе нужно согнуть поликарбонат в арку – делай это сразу на каркасе перпендикулярно внутренним каналам и с радиусом от 80 см.
Опорный козырек своими руками
Сооружение опорного козырька по началу ничем не отличается от других одно-, двухскатных или арочных – повторяй все шаги до этапа монтажа. Основное отличие в процессе установки: понадобятся вертикальные стойки. С деревянным каркасом используй брус большего сечения, а с металлическим – привари к нему опорные трубы, а потом зашкурь, прогрунтуй и прокрась швы.
Козырек над крыльцом – фото-идеи
Козырек над крыльцом – полезное приобретение для любого дома. Они отличаются формами, материалами и внешним видом, поэтому среди всего многообразия ты легко найдешь вариант для себя. Смотри и вдохновляйся!



